• Vertical & Horizontal centrifuge

    Vertical & Horizontal centrifuge

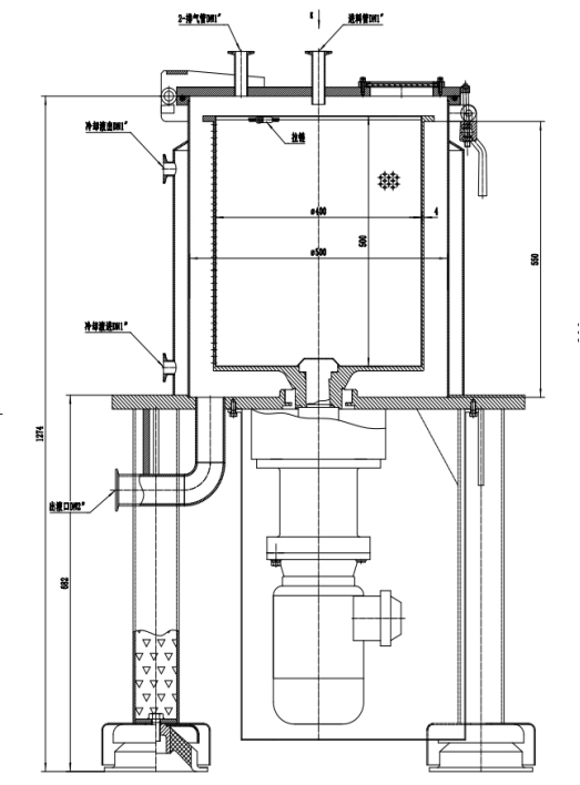
  • Centrifuge with table

    Centrifuge with table

image.png



image.png


Key Features:
1.The structure has a smooth transition, and the surface is polished to effectively eliminate dead spots. The surface in contact with material is made of 316 stainless steel.
2. Equipped with liquid damping shock absorber, which has great damping effect and simplifies daily maintenance.
3. The flip cover is equipped with a feeding tube, a washing tube, an observation mirror, and an illumination hole. Comply with the latest standards,directives and GMP requirments.

4.  Inverter startup, enable it to run smooth with adjustable separation factor.
5. It can be used for separation of suspensions with solid particles and fibrous materials.The grains inside are not easy to break. 

6.Sealed structure, the seal adopts silicon rubber or fluorine rubber, and is equipped with nitrogen protection system (optional), which can realize the requirements of closed explosion protection, suitable for applications in toxic and flammable and explosive situations.
7. This centrifuge uses a direct-connected explosion-proof motor, which eliminates friction dust caused by belt transmission. At the same time, the motor is installed at the bottom of the machine, which makes the centrifuge a smaller footprint.